
鋼蓋板
鋼蓋板是用花紋板和底部扁鋼支撐焊接而成,鋼蓋板可以在花紋板表面開人字孔方便提起檢修等,四圈焊接角鋼框把焊接好的鋼蓋板放在角鋼框內,框澆筑在地面這樣又美觀又方便使用,鋼蓋板用途主要是當溝蓋板用,表面一般有熱鍍鋅和不需要處理的,有需要的客戶聯系我們河北逍迪絲網制品有限公司
鋼蓋板選用表
| 溝寬 B (mm) | 蓋板長 (mm) | 地面均布荷載 kN/m2) | 汽車荷載 | ||||
|---|---|---|---|---|---|---|---|
| 5 | 10 | 20 | 汽 -10 單 | 汽 -15 單 | 汽 -20 單 | ||
| 400 | 500 | GB4 - 1 | GB4 - 2 | GB4 - 3 | GB4 - 4 | ||
| 600 | 700 | GB6 - 1 | GB6 - 2 | GB6 - 3 | GB6 - 4 | ||
| 800 | 900 | GB8 - 1 GB8 - 2 | GB8 - 3 | GB8 - 4 | GB8 - 5 | ||
| 1000 | 1100 | GB10 - 1 | GB10 - 2 | GB10 - 3 | GB10 - 4 | GB10 - 5 | |
| 1200 | 1300 | GB12 - 1 | GB12 - 2 | GB12 - 3 | GB12 - 4 | GB12 - 5 | |
| 1500 | 1600 | GB15 - 1 | GB15 - 2 | GB15 - 3 | GB15 - 4 | GB15 - 5 |
說明: 溝寬
- 鋼蓋板代號 GBL 一 Z L 有載等級
- 汽車荷載為單行道,后輪重力及分布見溝及蓋板說明。
- 汽車載不和地面均布荷組合,應按兩者中較大值選用蓋板。
鋼蓋板規格表
| 板號 | 件號 | 規格 | 長度 | 數量 | zaojlazhe.ee 單重 (N) | 共重 (N) | 總重 (N) |
|---|---|---|---|---|---|---|---|
| GB4-1 | 1 | -495X4 | 500 | 1 | 78 | 78 | 98 |
| 2 | -40X4 | 435 | 2 | 5.5 | 11 | ||
| 3 | -40X4 | 372 | 2 | 4.7 | 9 | ||
| GB4-2 | 1 | -495X4 | 500 | 1 | 78 | 78 | 103 |
| 2 | -40X4 | 435 | 2 | 5.5 | 11 | ||
| 3 | -40X4 | 372 | 3 | 4.7 | 14 | ||
| GB4-3 | 1 | -495X6 | 500 | 1 | 117 | 117 | 208 |
| 2 | -40X4 | 206 | 3 | 2.6 | 8 | ||
| 2a | -40X4 | 206 | 3 | 2.6 | 8 | ||
| 3 | [6.3 | 380 | 3 | 25 | 75 | ||
| GB4-4 | 1 | -495X6 | 500 | 1 | 117 | 117 | 233 |
| 2 | -60X4 | 205 | 3 | 3.9 | 12 | ||
| 2a | -60X4 | 205 | 3 | 3.9 | 12 | ||
| 3 | C8 | 380 | 3 | 30.6 | 92 |
| 板號 | 件號 | 規格 | 長度 | 數量 | zaoJiazne.ce 單重 (N) | 共重 (N) | 總重 (N) |
|---|---|---|---|---|---|---|---|
| GB6-1 | 1 | -495X4 | 700 | 1 | 109 | 109 | 134 |
| 2 | -40X4 | 435 | 2 | 5.5 | 11 | ||
| 3 | -40X4 | 572 | 2 | 7.2 | 14 | ||
| GB6-2 | 1 | -495X4 | 700 | 1 | 109 | 109 | 142 |
| 2 | -40X4 | 435 | 2 | 5.5 | 11 | ||
| 3 | -40X4 | 572 | 3 | 7.2 | 22 | ||
| GB6-3 | 1 | -495X6 | 700 | 1 | 163 | 163 | 299 |
| 2 | -40X4 | 206 | 4 | 2.6 | 10 | ||
| 2a | -40X4 | 206 | 4 | 2.6 | 10 | ||
| 3 | C6.3 | 580 | 3 | 38.5 | 115 | ||
| B6-4 | 1 | -495X6 | 700 | 1 | 163 | 163 | 335 |
| 2 | -60X4 | 205 | 4 | 3.9 | 16 | ||
| 2a | -60X4 | 205 | 4 | 3.9 | 16 | ||
| 3 | C8 | 580 | 3 | 46.6 | 140 |
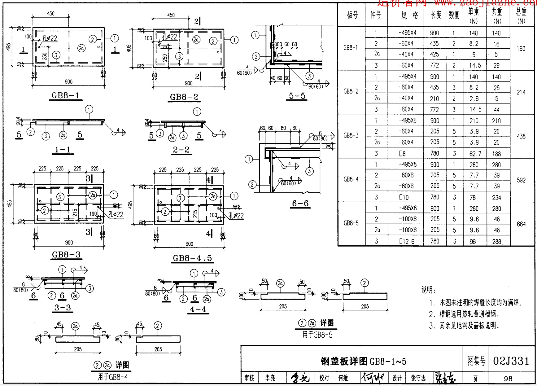
| 板號 | 件號 | 規格 | 長度 | 數量 | ww.zaoJlazne.ce 單重 (N) | 共重 (N) | 總重 (N) |
|---|---|---|---|---|---|---|---|
| GB8-1 | 1 | -495X4 | 900 | 1 | 140 | 140 | 190 |
| 2 | -60X4 | 435 | 2 | 8.2 | 16 | ||
| 2a | -40X4 | 425 | 1 | 5 | 5 | ||
| 3 | -60X4 | 772 | 2 | 14.5 | 29 | ||
| GB8-2 | 1 | -495X4 | 900 | 1 | 140 | 140 | 214 |
| 2 | -60X4 | 435 | 3 | 8.2 | 25 | ||
| 2a | -40X4 | 210 | 2 | 2.6 | 5 | ||
| 3 | -60X4 | 772 | 3 | 14.5 | 44 | ||
| GB8-3 | 1 | -495X6 | 900 | 1 | 210 | 210 | 438 |
| 2 | -60X4 | 205 | 5 | 3.9 | 20 | ||
| 2a | -60X4 | 205 | 5 | 3.9 | 20 | ||
| 3 | C8 | 780 | 3 | 62.7 | 188 | ||
| GB8-4 | 1 | -495X8 | 900 | 1 | 280 | 280 | 592 |
| 2 | -80X6 | 205 | 5 | 7.7 | 39 | ||
| 2a | -80X6 | 205 | 5 | 7.7 | 39 | ||
| 3 | C10 | 780 | 3 | 78 | 234 | ||
| GB8-5 | 1 | -495X8 | 900 | 1 | 280 | 280 | 664 |
| 2 | -100X6 | 205 | 5 | 9.6 | 48 | ||
| 2a | -100X6 | 205 | 5 | 9.6 | 48 | ||
| 3 | [12.6 | 780 | 3 | 96 | 288 |
| 板號 | 件號 | 造價者網 規格 | 長度 | 數量 | zaojiazhe.ee 單重 (N) | 共重 (N) | 總重 (N) |
|---|---|---|---|---|---|---|---|
| GB10-1 | 1 | -495X4 | 1100 | 1 | 171 | 171 | 229 |
| 2 | -60X4 | 435 | 2 | 8.2 | 16 | ||
| 2a | -40X4 | 425 | 1 | 5 | 5 | ||
| 3 | -60X4 | 972 | 2 | 18.3 | 37 | ||
| GB10-2 | 1 | -495X4 | 1100 | 1 | 171 | 171 | 247 |
| 2 | -60X4 | 435 | 2 | 8.2 | 16 | ||
| 2a | -40X4 | 210 | 2 | 2.6 | 5 | ||
| 3 | -60X4 | 972 | 3 | 18.3 | 55 | ||
| GB10-3 | 1 | -495X6 | 1100 | 1 | 256 | 256 | 532 |
| 2 | -60X4 | 205 | 5 | 3.9 | 20 | ||
| 2a | -60X4 | 205 | 5 | 3.9 | 20 | ||
| 3 | [8 | 980 | 3 | 78.8 | 236 | ||
| GB10-4 | 1 | -495X8 | 1100 | 1 | 342 | 342 | 714 |
| 2 | -80X6 | 205 | 5 | 7.7 | 39 | ||
| 2a | -80X6 | 205 | 5 | 7.7 | 39 | ||
| 3 | C10 | 980 | 3 | 98 | 294 | ||
| GB10-5 | 1 | -495X8 | 1100 | 1 | 342 | 342 | 8.2 |
| 2 | -100X6 | 205 | 5 | 9.7 | 49 | ||
| 2a | -100X6 | 205 | 5 | 9.7 | 49 | ||
| 3 | [12.6 | 980 | 3 | 120.6 | 362 |
| 板號 | 件號 | 規格 | 長度 | 數量 | zaojiazne.co 單重 (N) | 共重 (N) | 總重 (N) |
|---|---|---|---|---|---|---|---|
| GB12-1 | 1 | -495X6 | 1300 | 1 | 303 | 303 | 368 |
| 2 | -60X4 | 435 | 2 | 8.2 | 16 | ||
| 2a | -40X4 | 425 | 1 | 5 | 5 | ||
| 3 | -60X4 | 1172 | 2 | 22 | 44 | ||
| GB12-2 | 1 | -495X6 | 1300 | 1 | 303 | 303 | 465 |
| 2 | -80X4 | 435 | 2 | 10.9 | 22 | ||
| 2a | -60X4 | 206 | 2 | 3.9 | 8 | ||
| 3 | -80X6 | 1172 | 3 | 44 | 132 | ||
| GB12-3 | 1 | -495X6 | 1300 | 1 | 303 | 303 | 749 |
| 2 | -80X6 | 205 | 6 | 7.7 | 46 | ||
| 2a | -80X6 | 205 | 6 | 7.7 | 46 | ||
| 3 | C10 | 1180 | 3 | 118 | 354 | ||
| GB12-4 | 1 | -495X8 | 1300 | 1 | 404 | 404 | 957 |
| 2 | -100X6 | 205 | 6 | 9.7 | 58 | ||
| 2a | -100X6 | 205 | 6 | 9.7 | 58 | ||
| 3 | [12.6 | 1180 | 3 | 145.5 | 437 | ||
| GB12-5 | 1 | -495X8 | 1300 | 1 | 404 | 404 | 1105 |
| 2 | -120X8 | 205 | 6 | 15.5 | 93 | ||
| 2a | -120X8 | 205 | 6 | 15.5 | 93 | ||
| 3 | [14a | 1180 | 3 | 171.5 | 515 |
| 板號 | 件號 | 造價者網 規格 | 長度 | 數量 | 4a0 單重 (N) | azne. 共重 (N) | co 總重 (N) |
|---|---|---|---|---|---|---|---|
| GB15-1 | 1 | -495X6 | 1600 | 1 | 373 | 373 | 522 |
| 2 | -80X4 | 435 | 2 | 11 | 22 | ||
| 2a | -60X4 | 420 | 2 | 8 | 16 | ||
| 3 | -80X6 | 1472 | 2 | 55.5 | 111 | ||
| GB15-2 | 1 | -495X6 | 1600 | 1 | 373 | 373 | 578 |
| 2 | -80X4 | 435 | 2 | 11 | 22 | ||
| 2a | -60X4 | 206 | 4 | 4 | 16 | ||
| 3 | -80X6 | 1472 | 3 | 55.5 | 167 | ||
| GB15-3 | 1 | -495X6 | 1600 | 1 | 373 | 373 | 925 |
| 2 | -80X6 | 205 | 7 | 7.7 | 54 | ||
| 2a | -80X6 | 205 | 7 | 7.7 | 54 | ||
| 3 | C10 | 1480 | 3 | 148 | 444 | ||
| GB15-4 | 1 | -495X8 | 1600 | 1 | 497 | 497 | 1180 |
| 2 | -100X6 | 205 | 7 | 9.7 | 68 | ||
| 2a | -100X6 | 205 | 7 | 9.7 | 68 | ||
| 3 | C12.6 | 1480 | 3 | 182 | 547 | ||
| GB15-5 | 1 | -495X8 | 1600 | 1 | 497 | 497 | 1360 |
| 2 | -120X8 | 205 | 7 | 15.5 | 109 | ||
| 2a | -120X8 | 205 | 7 | 15.5 | 109 | ||
| 3 | [14a | 1480 | 3 | 215 | 645 |
鋼蓋板圖集







