中柱上吊車鋼斜梯

中柱上吊車鋼斜梯
中柱上吊車鋼斜梯基礎參數
- 中柱上吊車鋼斜梯材質:Q235B鐵,不銹鋼304,不銹鋼201,不銹鋼316,鋁(5-7系)
- 中柱上吊車鋼斜梯表面處理:默認熱鍍鋅,可以噴漆顏色可選
- 中柱上吊車鋼斜梯角度:59°/73°
- 中柱上吊車鋼斜梯安裝:組裝式
中柱上吊車鋼斜梯應用領域
中柱上吊車鋼斜梯選用說明
上吊車鋼斜梯由上吊車平臺、中間平臺、作業平臺鋼梯 和上端小梯組成本圖集僅做組合示意圖,不做選型編號,供項目設計參 考。項目設計時應根據工程需要另繪簡圖咱并做選型編號,其中斜梯的梯段可從本圖集的作業平臺鋼梯部分選用按上吊車鋼斜梯在廠房中的平面布置可分為柱中式、柱 邊式及繞柱式三種形式柱中式和柱邊式推薦采用傾角為 梁梁底標高小子等于59 。的鋼斜梯。當吊車 11. 梁底標高大于OOm 時,可選擇兩個梯段;當吊車梁 11. OOm 時,可選擇三個梯段 繞柱式推薦采用兩種傾角( 7 。和 59° )的鋼斜梯 用傾角 時,可選擇兩個梯段;當吊車梁梁底標高大于3° 鋼斜梯。當吊車梁梁底標高小于等于 11. 00 11. 選擇三個梯段OOrn 時,可 用傾角”。鋼斜梯。當吊車梁梁底標高小于等于 時,可選擇兩個梯段;當吊車梁梁底標高大于7. 40m 7. 用多梯段40m 時,可采 上吊車駕駛室的上端小梯,本圖集提供 1080mm540mm 810mm 三種高度,項目設計可根據吊車駕駛室的實際位置和 高度選擇上端小梯或自行設計根據項目設計需要,設計人可在車間的山墻上設置吊車 檢修鋼平臺鋼斜梯的涂裝要求為熱鍍鋅,可選噴漆顏色可選
中柱上吊車鋼斜梯編號及選用方法
鋼斜梯的選用方法可見本圖集 紹上吊車平臺和中間平臺的選用方法和編號作業平臺鋼梯。這里只介 上吊車鋼斜梯平臺選用/ 上吊車平臺sp/1柱中式平面布置上吊車鋼斜梯中間平臺選用/ 中間平臺ZP/繞柱式平面布置3

中柱上吊車鋼斜梯簡圖

邊柱上吊車鋼斜梯簡圖

繞柱上吊車鋼斜梯簡圖(73 。)

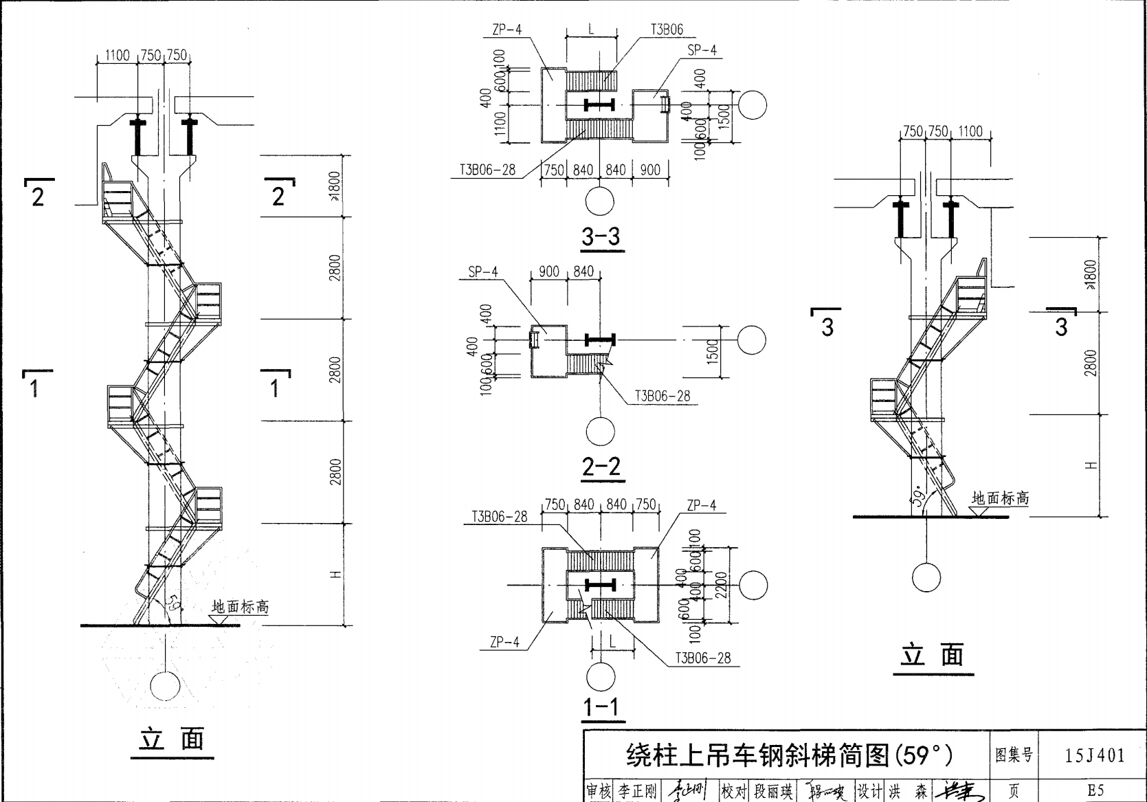
繞柱上吊車鋼斜梯簡圖(59°)

上吊車平臺SP-1.2詳圖

上吊車平臺SP-3.4詳圖

上吊車中間平臺ZP-1.2詳圖

上吊車中間平臺ZP-3.4詳圖

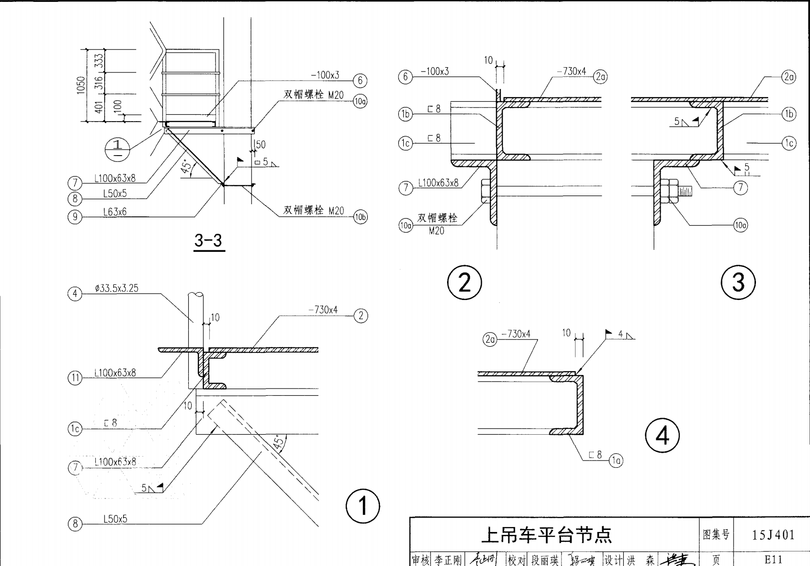
上吊車平臺節點

上吊車平臺節點

上吊車駕駛室小梯隊A,B,C詳圖

上吊車平臺SP-1 SP 材料表

上吊車中間平臺ZP-1 ZP-4材料表

