鋼梯
不銹鋼304爬梯
鋼直爬梯
籠式爬梯
單段梯鋼直梯
檢修鋼爬梯
上下式鋼制爬梯
上屋面直梯
固定式鋼梯
爬梯護籠
熱鍍鋅鋼梯
室外鋼梯
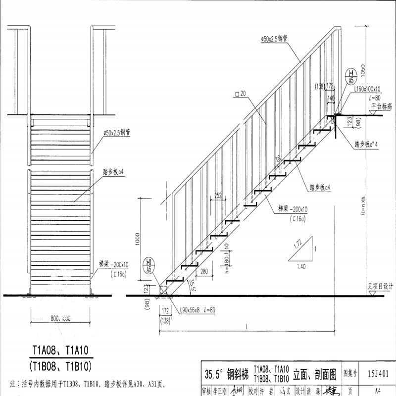
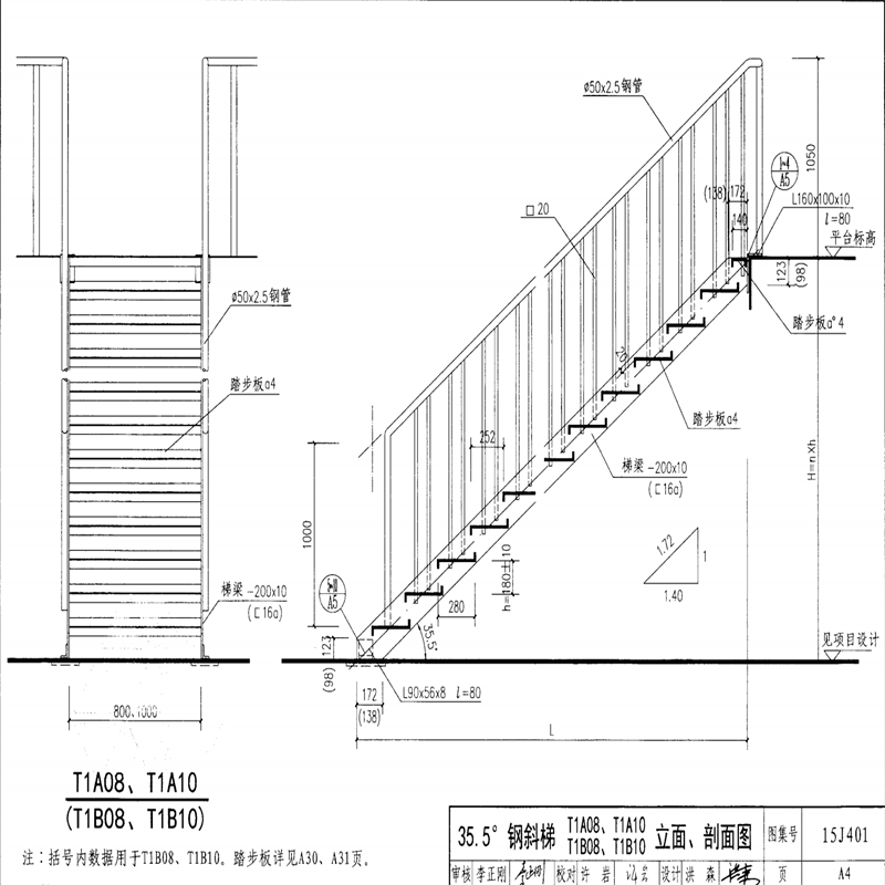
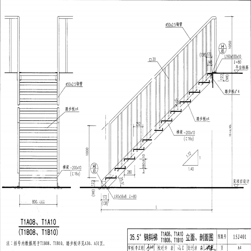
45°斜梯
手機:182-0333-2444 電話:188-0318-0271 地址: Copyright ? 2020 河北逍迪絲網制品有限公司 版權所有 冀ICP備17023073號-2 XML地圖